教育建筑空间
地产开发
文化品牌设计
公司介绍
联系我们
筛选
全部
进行中
概念设计
完成
类型
规划设计
公共建筑
居住建筑
室内设计
改造设计
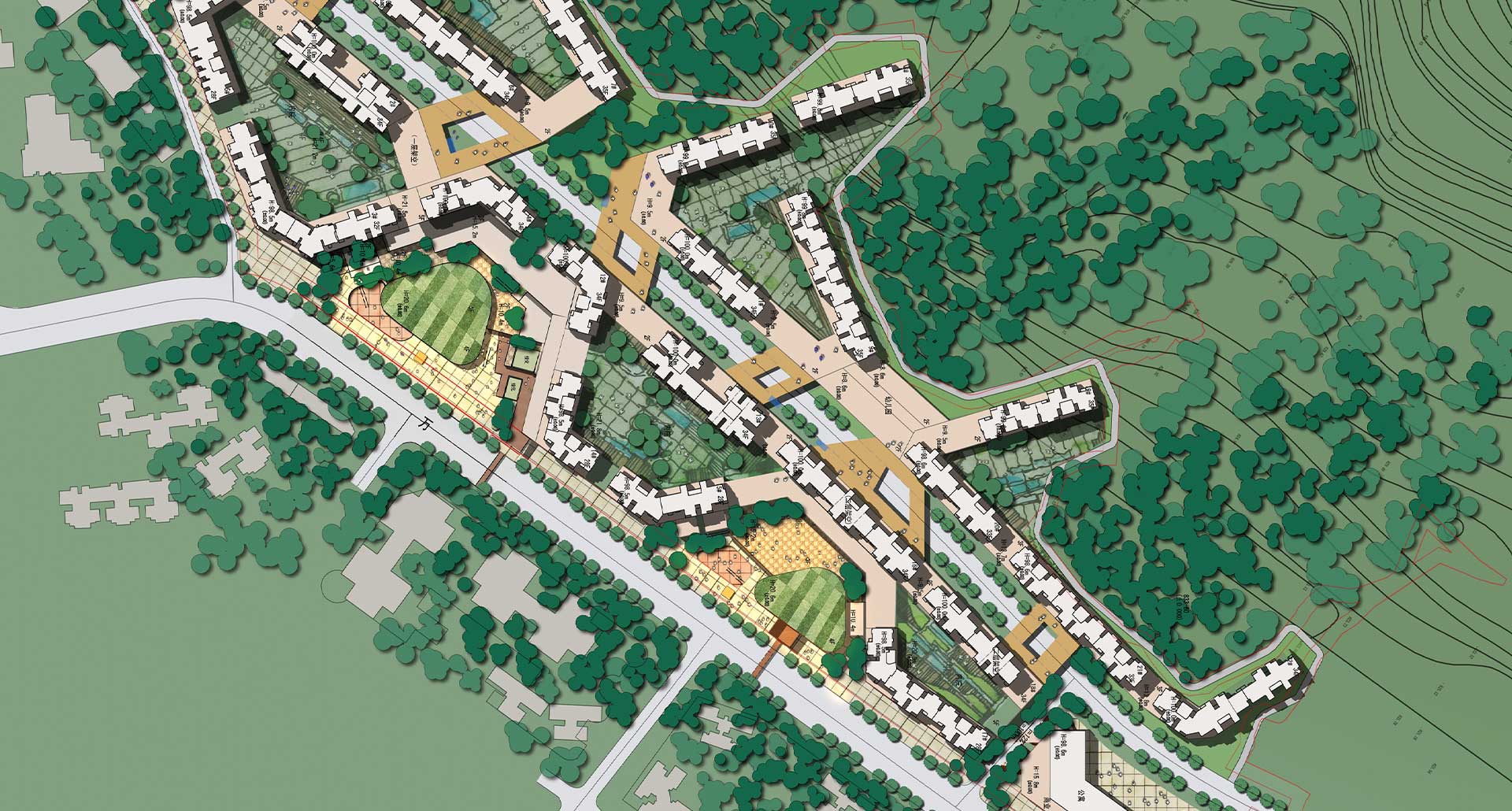
遵义伟岸万里江山
READ LESS
项目内容: 遵义伟岸·万里江山住宅项目
项目地点: 贵州遵义
建筑面积: 85.93 万平方米
Return To Top